產品分類
PRODUCT- 手持氣象站
- 便攜式氣象站
- 車載氣象站
- 自動氣象站
- 超聲波氣象站
- 化工自動氣象站
- 森林氣象站
- 校園氣象站
- 雪深監測站
- 輸電線路氣象站
- 雷電預警系統
- 機場氣象站
- 高精度風蝕自動氣象站
- 海洋氣象站
- 可升降避雷針
- 夜視儀
- 北斗環境監測站
- 氣象傳感器
- 水文監測系統
- 農業氣象站
- 草原氣象站
- 交通氣象站
- 光伏氣象站
- 景區氣象站
推薦文章
聯系我們
山東風途電子科技有限公司
服務熱線:16652863761
客服QQ:2749609891
客服微信:16652863761
公司地址:山東省濰坊市高新區光電路155號光電產業加速器(一期)

產品詳情
一、裂縫監測系統產品簡介
裂縫監測系統又稱裂縫檢測系統,裂縫監測系統用于實時監測裂縫寬度變化,用于基坑裂縫監測和建筑物裂縫觀測,可實現裂縫的分布式、實時、連續監測的需求。本產品廣泛應用于地質災害、巖土工程、建筑工程、交通、水利、市政等多個監測領域,特別適用于地表裂縫、卸荷裂隙、房屋或結構裂縫等相對位移的精確監測。
在地質災害監測中,能夠實時捕捉地表裂縫的微小變化,為滑坡、崩塌等災害預警提供關鍵數據;在巖土工程中,可有效監測卸荷裂隙的發展趨勢,確保工程安全;
在建筑工程領域,能夠精準檢測房屋或結構裂縫的位移情況,為建筑物的健康診斷和維護提供科學依據;
在交通、水利和市政工程中,同樣能夠發揮重要作用,確保基礎設施的長期穩定運行。
通過高精度的監測數據,幫助用戶及時采取應對措施,降低風險,保障工程和人員安全。
二、裂縫監測系統技術參數
| 量程 | 0-1000mm |
| 精度 | ±0.02%F.S |
| 響應時間 | 1s |
| 外殼材質 | ABS |
| 供電電壓 | 12-24VDC(0.4W@12V) |
| 通訊方式 | modbus-485 |
| 太陽能板功率 | 8W |
| 太陽能板標準工作電壓 | DC5V |
| 內置鋰電池容量 | 5000mAh |
| 支架材質 | 不銹鋼 |
| 采集器 | 帶3年流量 |
| 數據傳輸 | 標配每10分鐘傳輸一次,支持定制 |
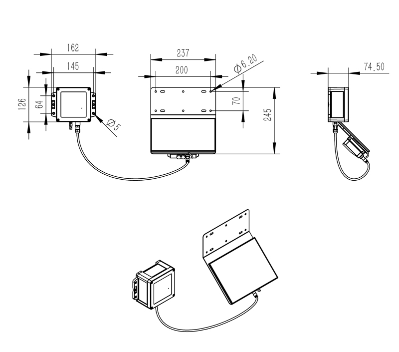
三、裂縫監測系統產品尺寸圖

更新時間:2026-04-07
文章地址:http://m.sdhqjx.com/shuiwen/1619.html
- 上一篇:裂縫監測傳感器
- 下一篇:管網低功耗采集微系統




